Здається офіс Київ, Кловский спуск, 7 (№ 1-497-182)
Ціна: 2 300 $

Характеристики
| Ціна: | 2 300 $ |
|---|---|
| № об'єкта: | 1-497-182 |
| Площа: | 93 м2 |
| Поверх: | 37 / 47 |
| Комиссия Агенства 50% Наличные; 56%Безнал : | - |
Адреса: Київ, Кловский спуск, 7
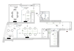
Оренда якісного офісу 93 кв.м. з супер видом. Мебльований. Печерськ.
Оренда супер видового мебльованого офісу 93 кв.м., з унікальною панорамою на Київ на висоті 125 м. Вул. Кловський узвіз 7, ЖК та БЦ Карнегі. Авторський дизайн проекту. Нежитловий фонд. Відео огляд youtu.beu002FfmgFsp0G884 На поверсі виконано ремонт, встановлено відеоспостереження. Офіс пропонує Вам два робочі простори на 6 та 2 особи, переговорну на 6 осіб, кабінет для CEO, кухню, 1 сан. вздовж, вбиральнюu002Fсерверну. Офіс розрахований на 9-12 робочих місць. В офісі є: система контролю доступу, 100 Гбітu002Fсек Інтернет, 7 провайдерів, оптоволокно, посилення GSM сигналу мобільних операторів. Є можливість орендувати парку місця в підземному паркінгу.














