Здається офіс Київ, Шевченківський, Львовская пл. (№ 1-495-537)
Ціна: 1 499 $

Характеристики
| Ціна: | 1 499 $ |
|---|---|
| № об'єкта: | 1-495-537 |
| Площа: | 70 м2 |
| Поверх: | 2 / 2 |
| Комиссия Агенства 50% Наличные; 56%Безнал : | - |
Адреса: Київ, Шевченківський, Львовская пл.
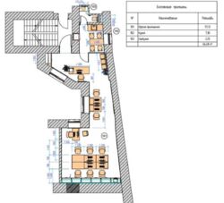
Оренда Офіс Львівська площа 67м2
Пропонується в оренду затишний офіс площею 66,48 кв.м., із свіжим якісним ремонтом та меблюванням. Перша оренда після ремонту, нові меблі та кухонна техніка. Зручне розташування поряд із Львівською площею по вл. Січових Стрільців. Приміщення знаходиться на 2 поверсі та складається із кабінету відкритого планування, кухні, сu002Fу та зони рецепції, 9 робочих місць, система кондиціонування з рекуперацією тепла і підігрівом повітря. Поряд ресторан з терасою, магазини, траспортна розвязка та зупинка громадського транспорту. До метро Золоті Ворота 1,1 км., 15 хв. пішої ходи..










