Здається офіс Київ, Владимирская ул., 92, м. Площа Українських Героїв (№ 1-488-238)
Ціна: 4 000 $ + комунальні

Характеристики
Ціна: | 4 000 $ + комунальні |
---|---|
№ об'єкта: | 1-488-238 |
Тип: | нежиле приміщення в житловому будинку |
Площа: | 100 м2 |
Поверх: | 2 / 5 |
Комиссия Агенства 50% Наличные; 56%Безнал : | + |
Додатково: | кондиціонер |
Адреса: Київ, Владимирская ул., 92, м. Площа Українських Героїв
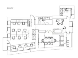
Аренда нового стильного офиса в центре, ул. Владимирская, 92.
Второй этаж с фасадным открытым балконом.
Фасадный вход.
Высота потолков 3,8м.
Количество рабочих мест 13 человек.
Сделан новый современный дизайнерский ремонт с применением новых технологий дизайна.
Офис полностью укомплектован современной качественной мебелью. На кухне есть вся необходимая для офиса техника: холодильник, плита, микроволновка. Бойлер. Система кондиционирования, климат-контроль.
Функциональное планирование, состоящее из:
* рабочих залов;
* Кабинет руководителя;
* комната для переговоров;
* кухня;
* skype-зоны;
* Санузел.
Прекрасное месторасположение офиса та удобная транспортная развязка.
Рядом ст.м. Олимпийская, Льва Толстого.