Здається офіс Московская ул., 32/2, Київ, Печерський, м. Арсенальна (№ 1-482-226)
Ціна: 4 991 $ + комунальні

Адреса: Московская ул., 32/2, Київ, Печерський, м. Арсенальна
Характеристики
| Ціна: | 4 991 $ + комунальні |
|---|---|
| № об'єкта: | 1-482-226 |
| Тип: | бізнес центр |
| Площа: | 161 м2 |
| Поверх: | 5 / 19 |
| Комиссия Агенства 50% Наличные; 56%Безнал : | + |
Опис
Центр, Печерский р-он.
Метро Арсенальная.
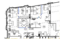
Предлагается в аренду офис в бизнес центре класса «А+», СЕНАТОР, ул. Московская, 32/2.
Площадь – 185.42 м2 включая коэффициент общих площадей 1.15.
Помещение передается с ремонтом, после арендатора.
Этаж - 5-й.
Планировка - open space, кабинеты, переговорные, кухня, с/у.
Заведены новейшие коммуникации, системы кондиционирования и вентиляции.
Круглосуточная охрана, пропускная система, доступ 24/7.
Коммерческие условия:
-арендная ставка – 31$/м2 + НДС;
-эксплуатационные платежи – 7$/м2 + НДС.









