Здається офіс Київ, Шевченківський, Жилянская ул., 59, м. Університет (№ 1-481-850)
Ціна: 8 700 $ + комунальні

Характеристики
Ціна: | 8 700 $ + комунальні |
---|---|
№ об'єкта: | 1-481-850 |
Тип: | нежиле приміщення в житловому будинку |
Площа: | 435 м2 |
Кабінетів: | 5 |
Поверх: | 1 / 17 |
Комиссия Агенства 50% Наличные; 56%Безнал : | + |
Додатково: | кондиціонер |
Адреса: Київ, Шевченківський, Жилянская ул., 59, м. Університет
Жилянская 59
Объект окружен развитой инфраструктурой и остановками общественного транспорта.
Центральный деловой район с удобным отдельным входом с фасада главной улицы.
Вход на 1 этаж с фасадными панорамными окнами, с отдельным выходом на внутренний двор.
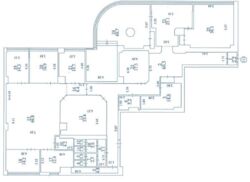
Офис состоит из одного открытого пространства (67 кв.м), пяти отдельных офисных помещений (12-16 кв.м каждое),
две комнаты для менеджмента (67 кв.м и 36 кв.м), два конференц-зала (33 кв.м и 17 кв.м)
Техническая часть офиса: кухня, сан.узел, серверная, архивная.
Текущий офис может быть преобразован в другую коммерческую недвижимость.
(салон, выставочный зал, клиника, ресторан, магазин и т. д.)
Индивидуальные системы кондиционирования и вентиляции с рекуперацией.
Высота потолков в свету 3,73 м.
Центральное отопление (напольные конвектора)
Центральное водоснабжение.
Центральная канализация.
Индивидуальная система пожарной сигнализации
Индивидуальная охранная сигнализация
Установленная мощность 80 кВт по второй категории. Собственный распределительный щит с системой АВР.
Телефония и Интернет - оптоволоконный кабель, собственная серверная.
Система контроля доступа (ACS)
Внутренняя система видеонаблюдения
Стоимость аренды $ 20/m2 + НДС20%