Продається квартира Київ, Печерський, Мичурина пер., 28, м. Печерська (№ 212-982-718)

Ціна: 980 000 $
Характеристики
Ціна: | 980 000 $ |
---|---|
№ об'єкта: | 212-982-718 |
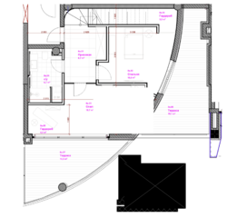
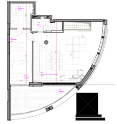
Кімнат: | 4 см/рз, студія |
Поверх: | 6 / 6 ліфт |
Площа: | 150 / - / - м2 |
Санвузол: | 3+ сумісний |
Балкон: | тераса |
Додатково: | новобудова |
Адреса: Київ, Печерський, Мичурина пер., 28, м. Печерська
PECHERSK HILLS RESIDENCE' – сучасний житловий комплекс клубного типу розташований у престижному районі на Печерських схилах поряд з Ботанічним садом ім. Гришка.
Двохрівневий пентхаус з відкритою терасою та чудовою панорамою на Батьківщину мати та Дніпро.
Стан - під чистове оздоблення (“White Box”)
2 рівні
2 тераси