Продається квартира Київ, Печерський, Мичурина пер., 28, м. Звіринецька   (№ 212-982-635)

Продається квартира Київ, Печерський, Мичурина пер., 28, м. Звіринецька фото 1

Ціна: 1 100 000 $

Характеристики

Ціна: 1 100 000 $
№ об'єкта: 212-982-635
Кімнат: 3 см/рз, студія
Поверх: 6 / 6 ліфт
Площа: 185 / 90 / 30 м2
Санвузол: 3+ сумісний
Балкон: тераса
Додатково: новобудова

Адреса: Київ, Печерський, Мичурина пер., 28, м. Звіринецька

'PECHERSK HILLS RESIDENCE' – сучасний житловий комплекс клубного типу розташований у престижному районі на Печерських схилах поряд з Ботанічним садом ім. Гришка.
Двохрівневий пентхаус з відкритою терасою та чудовою панорамою на Батьківщину мати та Дніпро.
Стан - під чистове оздоблення (“White Box”)
Інженерія - (опалення - Buderus, BOSCH; вентиляція та кондиціонування - Daikin)
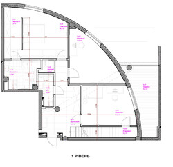
На 1-му поверсі розташовані майстер спальня з гардеробною зоною і власною ванною кімнатою, дві гостьові спальні (одна з них має вихід на персональну терасу), а також гостьова ванна кімната та пральна зона.
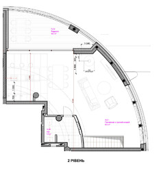
Прямі сходи з холу ведуть до вітальні на 2-му поверсі.
На 2-му поверсі розпланована простора вітальня, що об’єднана з кухонною зоною. Панорамні вікна висотою 3+ метрів обладнані зовнішніми ролетами. Закладено всі комунікації для димаря.
З вітальні є вихід на відкриту терасу з неймовірним видом на Ботанічний Сад ім. Гришка, та столичний Печерськ.
В окремій кімнаті встановлено систему індивідуального опалення пентхаусу, та обладнано гостьову вбиральню.

Об'єкт на карті

Замовити зворотній дзвінок