Продається квартира Київ, Печерський, Мичурина пер., 28, м. Звіринецька (№ 212-823-619)

Ціна: 1 600 000 $
Характеристики
Ціна: | 1 600 000 $ |
---|---|
№ об'єкта: | 212-823-619 |
Кімнат: | 3 см/рз, студія |
Поверх: | 6 / 6 ліфт |
Площа: | 207 / - / 80 м2 |
Санвузол: | 3+ сумісний |
Балкон: | тераса |
Додатково: | новобудова |
Адреса: Київ, Печерський, Мичурина пер., 28, м. Звіринецька
Pechersk Hills Residence - клубний будинок представницького класу розташований на Печерських пагорбах біля Ботанічного саду імені Грішка.
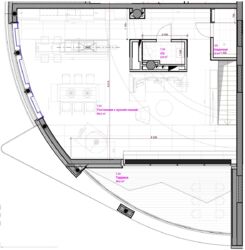
Пентхаус в два рівні загальною площею 207 кв.м.
- Авторський ремонт високого рівня з використанням натуральних матеріалів.
- Дві власних тераси с неймовірною панорамою на Києво-Печерську Лавру, Батьківщину Мати та Дніпро.
- Автономне електричне опалювання та гаряча вода, встановлена система кондиціонування Daikin, фільтрація води, алюмінієві вікна від Reynayers, автоматичні ролети,
- Встановлений камін Gyrofocus by Focus.
- Без меблів.
Планування: 1 рівень (стеля 3.2м) - 2 окремі спальні кімнати, гардероба (можливо переобладнати під спальню), 2 ванни кімнати, тераса, пральна кімната. 2 рівень (стеля 5м): простора кухня-вітальня з виходом на терасу, санвузол та кімната з інженерною системою будинку.
Житловий комплекс з власною інфраструктурою: власний басейн, фітнес-зал, спа-зона, підземний та намний паркінг, дитячий майданчик, тенісний корт.
Цілодобова охорона, відео-спостереження, запасний електро-генератор.
Унікальна локація для життя в великому місці.