Здається квартира Київ, Печерський, Институтская ул., 13А (№ 111-902-336)
Ціна: 2 730 $ + комунальні

Характеристики
Ціна: | 2 730 $ + комунальні |
---|---|
№ об'єкта: | 111-902-336 |
Кімнат: | 2 |
Поверх: | 5 / 5 |
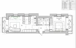
Площа: | 68 / 50 / 18 м2 |
Комиссия Агенства 50% Наличные; 56%Безнал : | + |
Адреса: Київ, Печерський, Институтская ул., 13А
Інститутська вул., 13а
Оренда дизайнерської квартири 68м2 на вул. Інститустька 13а
Реконструйований фасадний будинок дореволюційної епохи, розташований у престижному місці, урядовому кварталі Липки за 2 хвилини від Маріїнського парку та Офісу Президента.
– Унікальне тристороннє планування, висота стелі 3.5м, 5 поверх
– Дуже багато природного освітлення, приголомшливий вид із вікон.
– Презентабельна вхідна група, парадна після капітального ремонту на всіх поверхах, новий місткий ліфт, красиві фасадні двері.
– Своє паркування у закритому дворі.
– Кухня-вітальня, спальня, санвузол, 2 лоджії Унікальний об’єкт у престижному місці та будинку, рідкісна пропозиція на ринку нерухомості Києва.
Дизайнерський ремонт