Здається квартира Київ, Печерський, Мичурина пер., 28, м. Звіринецька (№ 111-829-191)
Ціна: 6 500 $ + комунальні

Характеристики
| Ціна: | 6 500 $ + комунальні |
|---|---|
| № об'єкта: | 111-829-191 |
| Кімнат: | 3 см/рз, студія |
| Поверх: | 4 / 5 ліфт |
| Площа: | 207 / - / 80 м2 |
| Санвузол: | 3+ сумісний |
| Балкон: | тераса |
| Комиссия Агенства 50% Наличные; 56%Безнал : | + |
| Додатково: | холодильник, телевізор, меблі, пральна машинка, інтернет, кондиціонер, новобудова |
Адреса: Київ, Печерський, Мичурина пер., 28, м. Звіринецька
Pechersk Hills Residence - розкішний резиденційний комплекс, вишукано розташований на вершинах Печерських пагорбів поруч із Ботанічним садом імені Грішка.
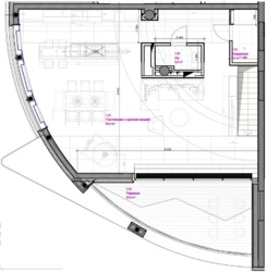
Елітний пентхаус дворівневий, площею 207 кв.м., вражає авторським високоякісним ремонтом, виконаним з використанням натуральних матеріалів. Наразі це справжня ода розкоші та комфорту.
На першому рівні з висотою стелі 3.2 метра розташовані дві окремі спальні, гардероб (який можна переобладнати під додаткову спальню), дві ванні кімнати, пральна кімната та вражаюча тераса. Другий рівень з висотою стелі 5 метрів пропонує простору кухню-вітальню з виходом на терасу, санвузол та кімнату з інженерною системою будинку.
Цей пентхаус також оснащений автономним електричним опаленням і гарячою водою, системою кондиціонування Daikin, фільтрацією води, алюмінієвими вікнами від Reynayers та автоматичними ролетами. Ще одним окрасою є камін Gyrofocus by Focus.
Житловий комплекс наділений власною інфраструктурою: басейн, фітнес-зал, спа-зона, паркінг, дитячий майданчик та тенісний корт. А безпеку мешканців гарантують цілодобова охорона, відеоспостереження та запасний електрогенератор. Це місце, де розкіш поєднується з сучасністю, створюючи неповторний простір для життя.
















































