Здається об'єкт Київ, Печерський, Бассейная ул., 1-3/2а, м. Площа Українських Героїв (№ 1-586-559)
Ціна: 5 520 $ + комунальні

Характеристики
Ціна: | 5 520 $ + комунальні |
---|---|
№ об'єкта: | 1-586-559 |
Тип: | кафе, бар, ресторан |
Поверх: | 1 / 8 |
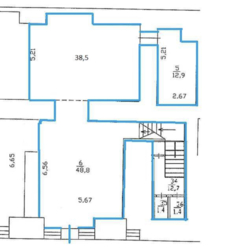
Площа: | 115 м2 |
Комиссия Агенства 50% Наличные; 56%Безнал : | + |
Додатково: | окремий вхід, кондиціонер |
Адреса: Київ, Печерський, Бассейная ул., 1-3/2а, м. Площа Українських Героїв
Арендная ставка 50$ за 1 м2+НДС На военное время 40$ за 1 м2+НДС
ARENA CITY 1-ый этаж, фасад Объект находится в самом сердце столицы. Окружен развитой инфраструктурой и остановками общественного транспорта. Центральный деловой район и место отдыха киевлян и гостей города. Помещение площадью 115 м2., в котором сейчас функционирует кофейня 'ТУТ БУДЕ'. Возможна аренда оборудования.