Здається об'єкт Київ, Подільський, Набережно-Крещатицкая ул., 31, м. Поштова площа (№ 1-585-721)
Ціна: 33 920 грн. + комунальні

Характеристики
Ціна: | 33 920 грн. + комунальні |
---|---|
№ об'єкта: | 1-585-721 |
Тип: | торгівельні площі, кафе, бар, ресторан, об'єкт сфери послуг, інше |
Поверх: | 1 / 4 |
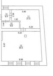
Площа: | 106 м2 |
Комиссия Агенства 50% Наличные; 56%Безнал : | + |
Додатково: | окремий вхід, кондиціонер |
Адреса: Київ, Подільський, Набережно-Крещатицкая ул., 31, м. Поштова площа
Подола, ул. Набережно-Крещатицкая 31, набережная Днепра. Фасадное помещение с отдельным входом 106 кв.м.
- больщой трафик потенциальных клиентов (авто);
- метро Контрактовая 6 мин. пешком;
- вода, электричество, канализация;
- автономное отопление;
- парковка на охраняемой территории;
- возможна фасадная парковка.
Программа перемещения бизнеса
На время ВП оплачиваются только эксплуатационные и коммунальные услуги.
После ВП:
- 3 месяца 25% от стоимости аренды,
- 4 - 6 месяц 50% от стоимости аренды,
- с 7 месяца 100% стоимость аренды.
Цена 320 грн./м2 с НДС. На период ВП скидка 25%