Здається об'єкт Київ, Шевченківський, Бульварно-Кудрявская ул. (Воровского), 15 (№ 1-577-024)
Ціна: 3 350 $ + комунальні

Характеристики
Ціна: | 3 350 $ + комунальні |
---|---|
№ об'єкта: | 1-577-024 |
Тип: | торгівельні площі, кафе, бар, ресторан, об'єкт сфери послуг, готель, інше |
Поверх: | 1 / 25 |
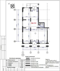
Площа: | 134 м2 |
Комиссия Агенства 50% Наличные; 56%Безнал : | + |
Додатково: | кондиціонер, парковка |
Адреса: Київ, Шевченківський, Бульварно-Кудрявская ул. (Воровского), 15
Предлагается в аренду помещение площадью 134 м.кв. в новом ЖК «Ярославов град» на Бульварно-Кудрявской. Первый этаж, с выходом на площадь перед домом, высокий потолок 4,6м, два входа, огромные витринные окна, выходящие на 3 стороны, так как помещение находится в торце дома. Подойдет под любой вид деятельности: магазин, бутик, салон красоты, аптека, банк. Цена 25$/м.кв.
42квтс возможностью увеличить
сдает фоп не плательщик ндс
НФ