Здається об'єкт Київ, Печерський, Дружбы Народов бульв., 38, м. Звіринецька (№ 1-571-253)
Ціна: 15 $ + комунальні

Характеристики
Ціна: | 15 $ + комунальні |
---|---|
№ об'єкта: | 1-571-253 |
Поверх: | 1 / 12 |
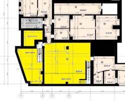
Площа: | 260 м2 |
Комиссия Агенства 50% Наличные; 56%Безнал : | + |
Адреса: Київ, Печерський, Дружбы Народов бульв., 38, м. Звіринецька
Сдается двухуровневое помещение на первом этаже офисного центра в Киеве, под офис / выставочный зал, магазин.
Адрес: г. Киев, бул. Дружбы народов, 38, (300 м от М. Дружбы народов.)
Общая площадь 205-260 м2.
Помещение ранее использовалось под клиентскую зону Дельта банка.
В здании, также имеются хранилище и депозитарий.
Помещение состоит из двух этажей:
- нижний этаж с окнами и фасадным входом с бул. Дружбы народов.
Открытая планировка и комната под сан. узел., плюс дополнительный выход на ул. Кургановскую.
- верхний этаж - открытая планировка с зенитными фонарями (окна в потолке),
плюс два кабинета.
При необходимости, можено увеичить площадь за счет рядом стоящих офисов.
Есть помещение для архива/склада со стеллажами.
Состояние ремонта - после арендатора.
Возможна аренда с мебелью.
Арендная ставка 15 у.е./м2
Эксплуатационные платежи 3 у.е./м2
+ НДС