Здається об'єкт Большая Васильковская ул. (Красноармейская), 101, Київ, Голосіївський, м. Палац Україна (№ 15-124-126)
Ціна: 3 100 $ + комунальні

Адреса: Большая Васильковская ул. (Красноармейская), 101, Київ, Голосіївський, м. Палац Україна
Характеристики
| Ціна: | 3 100 $ + комунальні |
|---|---|
| № об'єкта: | 15-124-126 |
| Поверх: | 1 / - |
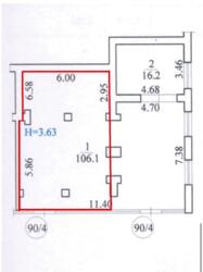
| Площа: | 62 м2 |
| Комиссия Агенства 50% Наличные; 56%Безнал : | + |
| Додатково: | окремий вхід |
Опис
Пропонується в оренду універсальне комерційне приміщення в престижній локації – Велика Васильківська, 101 (центр міста).
Площа: 62 м². Високий пішохідний і автомобільний трафік!
Метро Палац Україна - 2 хв, Олімпійська - 10 хв.
Фасадний вхід, великі вітрини. Підключені вода та електроенергія (потужність – 15 кВт)
Ремонт від оптики. Ідеально підійде для: торгівлі, сфери обслуговування, громадського харчування, медичних або освітніх послуг або представницького офісу.
Переваги локації:
• Центр міста
• Зручна транспортна розв’язка
• Активна ділова зона
• Розвинена інфраструктура навколо







