Здається об'єкт Михайловская ул., 11, Київ, Шевченківський, м. Майдан Незалежності (№ 15-121-627)
Ціна: 13 452 $ + комунальні

Адреса: Михайловская ул., 11, Київ, Шевченківський, м. Майдан Незалежності
Характеристики
| Ціна: | 13 452 $ + комунальні |
|---|---|
| № об'єкта: | 15-121-627 |
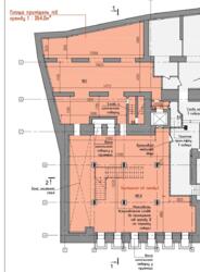
| Площа: | 354 м2 |
| Комиссия Агенства 50% Наличные; 56%Безнал : | + |
| Додатково: | окремий вхід |
Опис
Оренда комерційного приміщення в самому центрі Києва
вул. Михайлівська, 11 • Цоколь • Окремий вхід з двору • 354–522 м²
Пропонується в оренду просторе приміщення у знаковій локації столиці — між Хрещатиком та Софійською площею. Окремий вхід з двору.
Площа та можливості
354 м² — основний блок
Є можливість розширення до 522 м² шляхом об’єднання з першим поверхом ( фасадний вхід)
Окремий вхід з двору через власні сходи для цокольного поверху
Цокольне приміщення з природним освітленням
Локація — ТОП у місті
Будівля розташована у серці Києва:
3 хвилини до метро Майдан Незалежності
Поруч посольства, державні установи
Преміальні ресторани, готелі, офіси
Сильний пішохідний потік — туристи, бізнес-аудиторія, мешканці центру
Будівля — пам’ятка архітектури, повністю реставрована
Переваги приміщення
Окремий фасадний вхід
Статусна історична будівля
Природне освітлення у цоколі — рідкість для такого формату
Гнучке планування: можливість адаптації під орендаря
Підходить під торговий, офісний, сервісний, освітній формат
Фінансові умови
Оренда: 30 $/м² + ПДВ
ОПЕКС: 2 $/м² + ПДВ
Комунальні послуги — за фактичним використанням
Орендні канікули — обговорюються індивідуально























