Здається об'єкт Київ, Шевченківський, Бульварно-Кудрявская ул. (Воровского), 15, м. Золоті ворота (№ 15-121-540)
Ціна: 3 300 $ + комунальні

Характеристики
| Ціна: | 3 300 $ + комунальні |
|---|---|
| № об'єкта: | 15-121-540 |
| Поверх: | 1 / - |
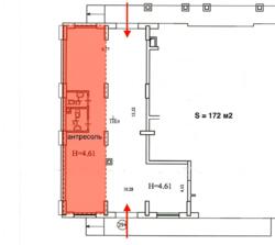
| Площа: | 172 м2 |
| Комиссия Агенства 50% Наличные; 56%Безнал : | + |
Адреса: Київ, Шевченківський, Бульварно-Кудрявская ул. (Воровского), 15, м. Золоті ворота
Оренда фасадного приміщення з ремонтом у ЖК “Ярославів Град”
Адреса: м. Київ, Шевченківський район, вул. Бульварно-Кудрявська, 15
Метро «Золоті Ворота» — 5 хвилин пішки
Пропонується в оренду фасадне приміщення з панорамними вітринами у престижному житловому комплексі «Ярославів Град».
Характеристики приміщення:
Площа — 172 м²
Поверх — 1-й
Висота стелі — 4,6 м
Два окремих входи
Є антресольний поверх
Стан — з ремонтом
Приміщення обладнане:
Системою кондиціонування (охолодження та обігрів)
Витяжкою з приміщення, санвузлів і кухні
Теплою підлогою з власним електрокотлом (альтернатива центральному опаленню)
Двома санвузлами (бойлер, централізована холодна вода)
Кухнею з підведеною гарячою та холодною водою
Лічильниками на воду, електроенергію, опалення
Пожежною сигналізацією
Повною розводкою електрики (світло, розетки)
Переваги:
Престижний комплекс на 776 квартир (елітна аудиторія)
Панорамні вітрини виходять на пішохідний променад
Розташування у центрі Києва: поруч Львівська площа, Ярославів Вал, Січових Стрільців
Закрита територія, цілодобова охорона, відеоспостереження
Зручний підземний паркінг із контролем доступу
Можливе використання:
— Офіс, представництво компанії
— Медичний чи б’юті-центр
— Освітній простір, шоурум, аптека
— Банківське відділення чи магазин
Вартість оренди: 3300 $/міс
— Договір оренди від 35 місяців












