Продається будинок Київ, Печерський, Мичурина ул., 38 (№ 22-405-830)
Ціна: 4 800 000 $

Характеристики
Ціна: | 4 800 000 $ |
---|---|
№ об'єкта: | 22-405-830 |
Тип: | будинок |
Поверхів: | 4 |
Спалень: | 6 |
Площа будинку: | 900 м2 |
Ділянка: | 8 сот |
Выход к воде : | - |
Бассейн : | - |
є цоколь або підвал або укритя : | - |
Адреса: Київ, Печерський, Мичурина ул., 38
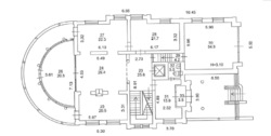
Первый этаж представляет собой пространство, спроектированное для комфортной и гармоничной жизни. В основной гостиной
зоне установлена массивная дубовая паркетная доска, а вентиляция осуществляется через канальный кондиционер Gree, обеспечивая
оптимальный климат. В зоне бара вы обнаружите встроенную мебель, выполненную из шпона, стильные столы и светильники, создающие
приятную атмосферу.
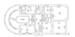
На втором этаже гостиными спальнями и санузлами, оснащенными исключительной мебелью и изысканными светильниками,
подчеркивается роскошь и комфорт. Люстры и бра дополняют элегантность каждой комнаты.
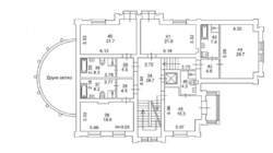
Третий этаж приглашает вас насладиться спокойствием в спальне, просторной гостиной и гардеробной. Гостиная также
оборудована кондиционерами Gree и является идеальным местом для отдыха. У санузлов новая обстановка, и в каждом уголке этого
дома продуманы детали. Техническое оснащение дома просто впечатляет. В спортзале, зале с камином, кинотеатре, бассейне, хамаме и
сауне используется современный микроцемент для стен и пола, создавая стильное и удобное пространство. Бассейн оборудован новым
оборудованием и насосами. Из бассейна есть выход на террасу, так же есть выход на террасу и из гостиной комнаты в которой камин. В
вашем распоряжении встроенная техника в кухне от Bosch и Whirlpool, гарантированно обеспечивающая комфорт и удовольствие в
приготовлении пищи.
Хозяйский гараж находиться а доме и рассчитан на 2 паркоместа + одно на улице. Гараж на 4 машины для дополнительного
транспорта с комнатой для охраны. Возможность размещения 2-х машин на территории. При потребности возможность обеспечить около
10 ти паркомест. Так же при въезде на территорию домовладения есть домик для физической охраны с видеонаблюдением.