Продається будинок Київ, Голосіївський, Пролетарская ул., 19 (№ 22-318-632)
Ціна: 295 000 $

Характеристики
| Ціна: | 295 000 $ |
|---|---|
| № об'єкта: | 22-318-632 |
| Тип: | таунхаус |
| Поверхів: | 6 |
| Спалень: | 4 |
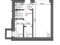
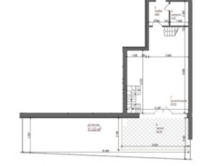
| Площа будинку: | 204 м2 |
| Ділянка: | 5 сот |
| Выход к воде : | - |
| Бассейн : | - |
| є цоколь або підвал або укритя : | - |
Адреса: Київ, Голосіївський, Пролетарская ул., 19
Продажа таунхауса 204 м2 в КГ «Городской дом 2» в Киеве находится в переулке Пролетарский, 19 в микрорайоне Ширма Голосеевского района столицы. Дом построен из высококачественных экологически безопасных материалов. В качестве основного строительного материала используется красный керамический кирпич, производится утепление фасада, а также облицовка декоративной штукатуркой и натуральным камнем. Сделан качественный ремонт. Есть терраса с зоной отдыха. В цоколе каждого домовладения размещается гараж на две автомашины. Окна и наружные двери с панорамными стеклопакетами. До проспекта Валерия Лобановского несколько десятков метров, до Совских прудов на противоположной стороне трассы менее двухсот метров. Новостройка удалена от центра на девять километров.
В двух километрах находится аэропорт «Киев». До центрального автовокзала ехать всего две минуты, станция метро «Демиевская» расположена в полутора километрах. Остановка наземного общественного транспорта находится в трех минутах ходьбы – по проспекту пролегают пять маршрутов троллейбусов, автобусов и маршрутных такси. Минимальный интервал движения составляет шесть минут. Удобная транспортная развязка позволяет свободно пользоваться собственным автотранспортом. расположены средние школы №319, №121, частная школа «Афины», частный детский сад «Подсолнухи» и детский сад №24. В радиусе трехсот метров имеется четыре магазина продуктов, до ближайшего сетевого супермаркета менее полутора километров. Поблизости есть множество развлекательных и культурных учреждений, среди которых концертный зал «Stereo Plaza», ночной клуб, народный театр-студия кукол «Казкарик», музей-класс Валерия Лобановского, Голосеевский парк с картингом и аттракционами. В радиусе четырехсот метров находятся два медицинских центра


































